
Western Red Cedar beklædning, KEF UTS10-G10, 100% PEFC
Produktbeskrivelse
Western Red Cedar, også kaldet Canadisk cedertræ, er en flot træsort i changerende farver fra helt lys rødlig til brunlig. Cedertræ er blandt andet velegnet til facadebeklædning og diverse snedkerarbejde.
Bemærk, dette er en skaffevare.
Leveringstid: Se under produktinformationerne øverst.
Der vil tillægges opstillingsgebyr ved ordre under 1.000 lbm.!
Kontakt os gerne for yderligere information.
Denne profil opfylder ikke præaccepteret krav for klasse 2 beklædning grundet densitet under 390 kg/m3. Læs mere herom i hhv. TRÆ55 Træfacader i seneste opdateret version, herudover anbefaler vi ligeledes TRÆ78 Træbyggeri i brandklasse 1 og 2.
Western Red Cedar hører til Cypres-familien og har en kraftig duft. Træsorten indeholder "Thuja Implimer" og fungicider, hvilket gør det særligt holdbart udendørs. Derfor anvendes træet ofte til facadebeklædning. Træets egenskaber hjælper til at holde utøj væk, så har du interesse i at holde møl væk fra din yndlingsjakke i skabet, så put et lille stykke cedertræ i lommen.
Tekniske specifikationer
-
Vare nr.1008556
-
TræsortWestern Red Ceder
-
Botanisk familieThuja Plicata
-
OprindelseCanada
-
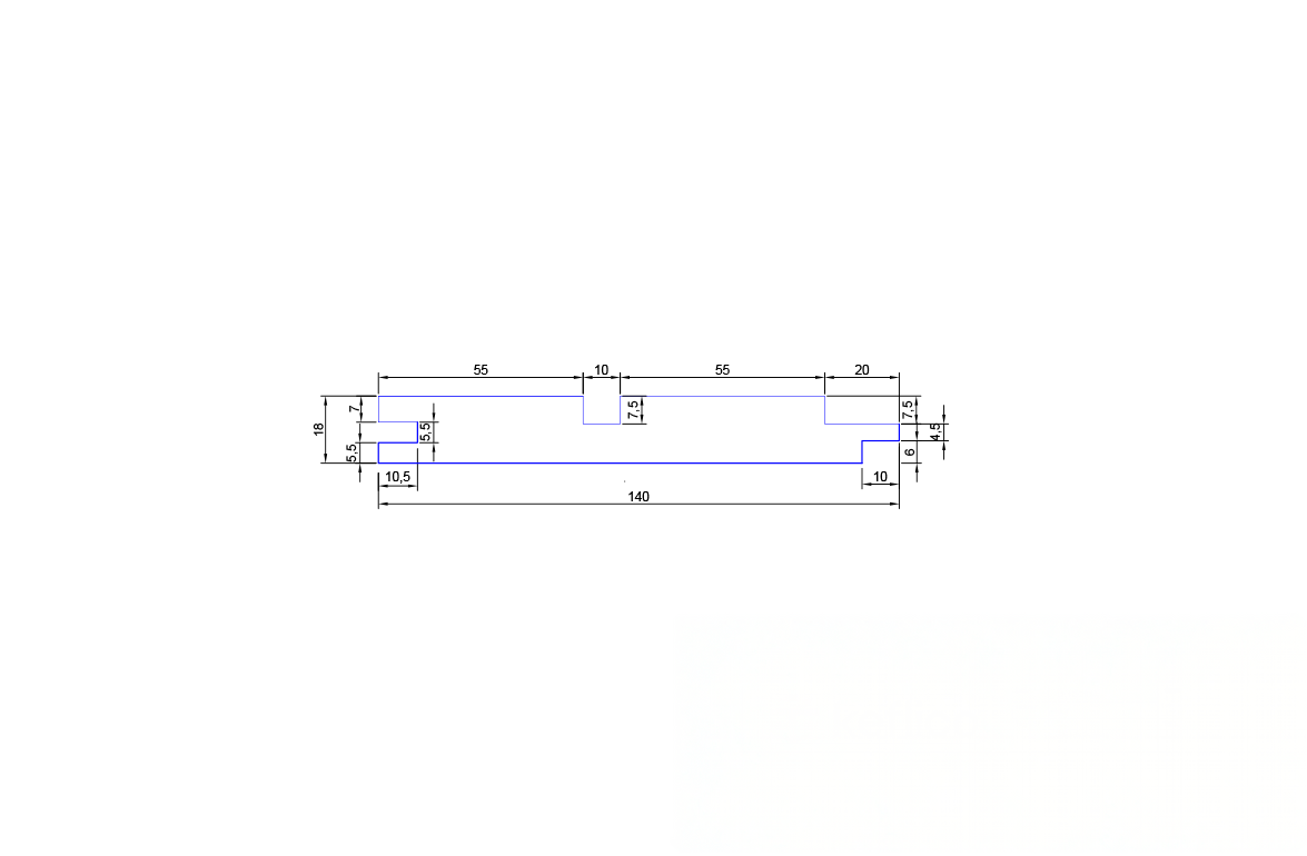
Tykkelse18
-
Bredde140
-
FarveBrunlig, Gul, Rødlig
-
Farveudtræk1
-
Kvalitet#2 - Clears only
-
ProfilUTS10-G10
-
FormstabilitetMeget høj
-
Fugtindhold14 - 18% +/-2%
-
Tolerance1-2mm
-
AnvendelseEksteriør
-
MonteringLodret
-
InstallationSynlig
-
C/C max afstand (cm)60 cm
-
Naturlig varighedVarig (Klasse 2)
Varighed for træbaserede produkter vil altid være angivet ud fra en EN-standard, og beskrives ved et tal. Dette tal sammenholdes med materialets anvendelse, og angiver en forventet varighed i år inden biologisk nedbrydning.
-
Densitet kg/m3400
Densitet angiver vægten for 1m3 af materialet ved en given fugtighed gældende for både træ og plader. For træ kan det blandt andet give en idé om indhold af olier, kisel og lignende, og ikke mindst træfibrenes tæthed. For massivtræ angives densiteten typisk ved 12% fugtighed. For krydsfiner defineres densiteten typisk ved omkring 10%.
-
Certificering100% PEFC
-
EPD IDHUB-3266
Nummer på EPD
-
EPD GWP TOTAL A1-A3-3,97E+02
Info om CO2 forbrug
-
EPD DEKLARERET ENHEDm3
Enhed for EPD
-
FastgørelseSkruer, Søm
Se mere under fanen - Yderligere information
-
BemærkningHøjt indhold af 'Thuja Implimer' og Fungicider med knaster i henhold til kvalitet. Vindriser og revner vil dog være naturligt forekommende.
Se mere under fanen - Yderligere information
Dokumenter
-
Miljø og klima
EPD HUB 3266
Yderligere informationer
UdseendeKernetræet fra Western Red Cedar har smukke rødbrune nuancer. Den smalle splint har en ensartet hvid-gullig nuance. Teksturen i træet er ret grov, og træet har ingen harpiksgange. Træet fremstår ofte knastfrit.
Egenskaber og kvalitetWestern Red Cedar er kort og skør i fibrene, hvilket gør den svag i forhold til tryk, træk og hårde bøjninger. Træet er formstabilt og modstandsdygtigt over for vind og vejr. Formbestandigheden og fugetætheden er god, og træets evne til at være selvimprægnerende bevirker, at det er modstandsdygtigt over for vind og vejr.
AnvendelseWester Red Cedar kan anvendelse både til udvendige og indvendige formål, hvor fugetæthed og knastfrihed er vægtet højere end træets styrke. Træet ses ofte anvendt som eksteriør til beklædning i form af lister eller beklædningsbrædder, men benyttes også som tagspån.
MonteringHusk korrekt montering med A4 rustfri og syrefaste facadeskruer og beslag. Det anbefales desuden at give træet endetræsforsegler samt en let overfladeslibning efter montering. Sådan opnår du en høj finish, og begrænser i nogen grad at træfibrene rejser sig yderligere, og at modvækst giver træet en ru overflade. Det kan være nødvendigt at følge op på dette efter behov, eller når træet olieres, eller påføres trærens.
Se mere i vores monteringsvejledning her.
Tilbehør til montering
Keflico Facadeskrue A4 syrefast, 5,0x45mm
Keflico Facadeskrue A4 syrefast, 5,0x50mm
Ringsøm A4, min. 50mm
Vi vil altid anbefale behandling af træ til facadebeklædning med hhv. endetræsforsegler under, samt olie enten før eller ganske kort efter montering. Efterfølgende anbefaler vi, at du vedligeholder dit træ med rens og olie minimum én gang om året.
Oliering er med til at styrke træets eget panser og egenskaber generelt. Samtidig er oliering med til at understrege og bevarer træets naturlige glød, samt beskytte det mod udefrakommende partikler. Oliering kan ganske enkelt forlænge dit træs levetid!
Din løsning vil dog også kunne klare sig uden rens og oliering. Da vil patineringsprocessen blot være endnu mere udpræget og lidt hårdere ved træet med tiden.
Læs mere om korrekt vedligehold af dit træ i vores vedligeholdelsesvejledning her.
PatineringTræ er et smukt og levende materiale. De friske profiler har nærmest kun begyndt deres livscyklus når de etableres som facade eller i et andet udendørs projekt. Vejrpåvirkninger og slid vil løbende give træet en nydelig karakter og træet vil, uanset træsort, patinere i flotte grålige nuancer, hvis ikke det olieres.
Vindridser, svindrevner og deformering er et vilkår og en del af træets udvikling og patinering udendørs. Det samme gælder med- og modvækst samt fiberrejsninger. Oliering kan være med til at mindske nogle af disse patineringsprocesser. Og kan være med til at bringe den naturlige glød frem igen.
Er du nysgerrig på hvad, der sker med træet under patinering og hvordan oliering kan gøre en forskel for processen?
BemærkningerDe første år af træets levetid vil altid være hårdest. Her tilpasser træet sig klimaet, hvorfor det vil arbejde mere. Her vil tørreridser, revner og deformation være hyppigere forekommende. Derfor kan der være enkelte profiler, der løbende vil kræve en udskiftning. Efter det første år stabiliserer træet sig og bliver mere roligt.
Træ er et levende materiale. Derfor vil træet løbende optage og afgive fugt som temperaturer og luftfugtigheden ændrer sig. Det vil betyde dimensionsændringer i løbet af året. Ligeledes må det også forventes at endestød og at eventuelle smig samlinger bevæger sig efter en periode. Derfor er det vigtigt med korrekt montering.
Husk at påregne, at der cirka vil forekomme 5 – 10% spild ved sortering, tilpasning og afkapning. Spild der kan anvendes til andre projekter som f.eks. blomsterkasser, fuglehus eller andet.
Sorte nister/affarvninger kan forekomme på træets overflade når udvaskning af de naturlige indholdsstoffer reagere med de svampesporer og metalpartikler, som hele tiden er i luften, lægger sig på træet og dermed skaber en reaktion. Dette bør kunne afhjælpes med en afrensning, og i nogle tilfælde en slibning.
HUSK - ikke to stykker træ er ens. Derfor er dit projekt også helt unikt.
Fandt du ikke det du søgte?
Send os en forespørgsel, og vi kontakter dig hurtigst muligt.
Forespørg produkt